captura de pantalla 2025 01 26 182300

Reforma Vivienda Kepler

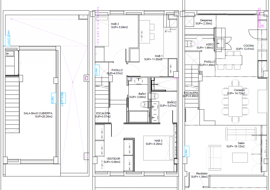
Reforma interior 

Reforma de una vivienda para convivir la arquitectura, el diseño y la practicidad de la vida adulta e infantil

Vivir con niños y adultos , sin dejar de lado el diseño y la luminosidad

Fotos (antes)

whatsapp image 2024 11 06 at 14.50.07 1
whatsapp image 2024 11 06 at 14.50.06

Fotos (después)

whatsapp image 2025 09 10 at 12.53.16
whatsapp image 2025 09 10 at 12.54.43 1
Scroll al inicio
Abrir chat
Hola 👋
¿En qué podemos ayudarte?